Modernisiertes Einfamilienhaus mit Garten und Garage in Peine-Schmedenstedt! Mein Haus=Mein Makler!
31226 Peine, Einfamilienhaus zum Kauf
Kontaktdaten
-
FirmaMaklerhaus 38 GmbH
-
AnschriftLange Strasse 52
38448 Wolfsburg -
E-Mail
-
Telefon
Objektdaten
-
Objekt-ID2025589
-
ObjekttypenEinfamilienhaus, Haus
-
Adresse31226 Peine
Niedersachsen -
Etagen im Haus2
-
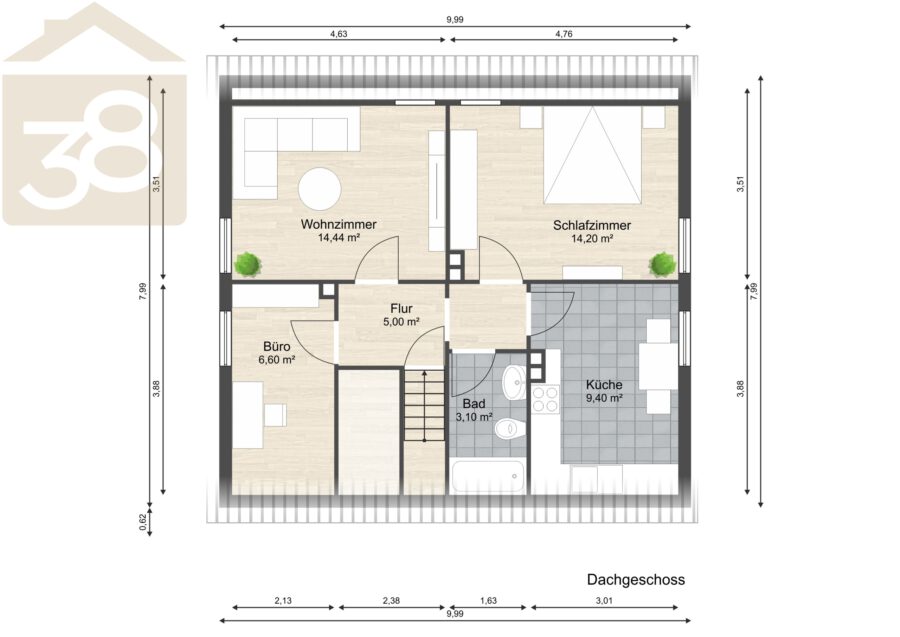
Wohnfläche ca.129 m²
-
Grundstück ca.1.000 m²
-
Zimmer6
-
Schlafzimmer5
-
Badezimmer2
-
Wesentlicher EnergieträgerGas
-
Baujahr1958
-
Letzte Modernisierung2021
-
Zustandmodernisiert
-
AusstattungStandard
-
BodenbelagFliesen
-
Garagenstellplätze4 Stellplätze
-
Käuferprovision2,58 % Käuferprovision inklusive Umsatzsteuer.
Die Käufer-Provision beträgt 2,58 % vom Kaufpreis inkl. MwSt. Die Käufer-Provision ist verdient und fällig mit notarieller Beurkundung. Die Maklerhaus 38 GmbH hat einen provisionspflichtigen Maklervertrag in gleicher Höhe mit dem Verkäufer abgeschlossen. -
Kaufpreis279.000 EUR
Ausstattung / Merkmale
- ✓ Abstellraum
- ✓ Außenstellplatz
- ✓ Badewanne
- ✓ Dusche
- ✓ Fliesenboden
- ✓ Garage
- ✓ Garten/Gartennutzung
- ✓ Keller
- ✓ Tageslichtbad
Energieausweis
-
EnergieausweistypVerbrauchsausweis
-
Ausstellungsdatum13.07.2020
-
Gültig bis13.07.2030
-
GebäudeartWohngebäude
-
Baujahr lt. Energieausweis2000
-
PrimärenergieträgerGas
-
Endenergieverbrauch184,20 kWh/(m²·a)
-
Warmwasser enthaltenja
-
EnergieeffizienzklasseF
Objektbeschreibung
Beschreibung
Dieses charmante Einfamilienhaus in Peine-Schmedenstedt überzeugt mit ca. 129 m² Wohnfläche auf einem großzügigen 1.000 m² großen Grundstück und bietet ideale Voraussetzungen für Familien, die Wert auf Platz, Licht und moderne Ausstattung legen.
Bereits beim Betreten des Hauses spürt man die helle und einladende Atmosphäre. Zahlreiche große Fensterflächen durchfluten die Räume mit Tageslicht und schaffen ein freundliches, offenes Wohngefühl. Der großzügige Wohnbereich bildet das Herzstück des Hauses und bietet viel Platz für gemeinsame Stunden mit der Familie sowie für gemütliche Abende.
Im Jahr 2021 wurde die Immobilie umfassend modernisiert und technisch auf einen zeitgemäßen Stand gebracht. In diesem Zuge wurden eine Fußbodenheizung installiert, die Elektrik vollständig erneuert, die Wände neu verputzt, sämtliche Wasserleitungen ausgetauscht sowie das Badezimmer hochwertig modernisiert. Das Haus präsentiert sich dadurch in einem sehr gepflegten und zeitgemäßen Zustand.
Ein absolutes Highlight ist das weitläufige Grundstück mit seinem großen Garten. Hier eröffnen sich vielfältige Möglichkeiten – ob Spielparadies für Kinder, entspannte Grillabende mit Freunden oder die Verwirklichung eigener Gartenträume. Die Größe des Grundstücks bietet ausreichend Privatsphäre und viel Raum zur Entfaltung.
Zusätzlichen Komfort bietet die Garage im separaten Nebenhaus, die nicht nur Ihr Fahrzeug schützt, sondern auch weiteren Stauraum bereithält. Das Haus ist vollunterkellert und bietet dort zusätzlichen Stauraum.
Dieses Einfamilienhaus ist das perfekte Zuhause für eine Familie, die ein modernes, lichtdurchflutetes Wohnambiente mit großzügigem Garten und viel Platz im Innen- und Außenbereich sucht. Eine Immobilie, die Komfort, Raum und Lebensqualität harmonisch miteinander verbindet.
Ausstattung
- 129 m² Wohnfläche
- 1.000 m² Grundstück
- Keller 60 m²
- Umfassende Modernisierungen in 2021
- Fußbodenheizung
- 2x Badezimmer
- Garage und Außenstellplätze
- zwei seperate Abstellräume im Nebenhaus
Sonstiges
Gerne laden wir Sie zu einer Besichtigung ein, um Ihnen vielleicht Ihr neues Zuhause bekannt zu machen.
Bei Interesse und zur Vereinbarung von Besichtigungsterminen setzen Sie sich bitte mit uns über das Kontaktformular in Verbindung. Bitte geben Sie hierbei Ihre vollständige Kontaktadresse an. Unvollständige Anfragen werden nicht bearbeitet.
Unser Angebot ist nur für den Empfänger bestimmt. Da die in diesem Exposé enthaltenen Angaben auf Informationen des Eigentümers beruhen, können wir für die Richtigkeit trotz aller Sorgfalt keine Gewähr übernehmen. Hierfür bitten wir höflich um Ihr Verständnis.
Die Datenverarbeitung erfolgt auf Grundlage von Art. 6 Abs. 1 lit. b) DSGVO. Sie müssen dabei diejenigen personenbezogenen Daten angeben, die für die Bearbeitung Ihres jeweiligen Anliegens bzw. die Vorbereitung oder Durchführung der Geschäftsbeziehung mit Ihnen erforderlich sind. Ohne diese Daten werden wir nicht in der Lage sein, Ihre Anfrage zu bearbeiten bzw. den Vertrag mit Ihnen zu erfüllen. Ich stimme daher zu, das Maklerhaus 38 GmbH meine personenbezogenen Daten im Einzelfall z.B. bei Kauf- oder Mietvertragsabschlüssen abspeichert und an Dritte (Eigentümer/Notar/Behörden) übermitteln darf.
Lage
Die Immobilie befindet sich in Schmedenstedt, einem beliebten und gewachsenen Ortsteil der Stadt Peine. Der Ort vereint ruhiges, naturnahes Wohnen mit einer hervorragenden Anbindung an die umliegenden Städte und bietet damit eine ideale Kombination aus Lebensqualität und Mobilität.
Die Peiner Innenstadt ist in nur wenigen Minuten erreichbar und bietet eine sehr gute Infrastruktur mit zahlreichen Einkaufsmöglichkeiten, Ärzten, Apotheken, Restaurants, Cafés sowie sämtlichen Schulformen und Kindergärten. Auch Freizeit- und Sportangebote sind vielfältig vorhanden.
Besonders attraktiv ist die verkehrsgünstige Lage: Über die nahegelegene Bundesstraße B1 erreichen Sie Braunschweig in nur ca. 20 Minuten. Die Autobahn A2 ist ebenfalls schnell erreichbar und liegt nur etwa 10 Fahrminuten entfernt. Dadurch besteht eine hervorragende Anbindung in Richtung Hannover, Braunschweig und Wolfsburg – ideal für Berufspendler.
Schmedenstedt selbst überzeugt durch seine ruhige, familienfreundliche Atmosphäre, viel Grün und ein angenehmes Wohnumfeld. Hier genießen Sie entspanntes Wohnen im Grünen, ohne auf die Vorteile einer guten städtischen Infrastruktur verzichten zu müssen.
Die dargestellte Position der Immobilie ist nur eine ungefähre Angabe.































