Modernes Einfamilienhaus mit Schwimmbad,Sauna & Nebengelass bei Brome!Meine Immobilie = Mein Makler!
38489 Jübar, Einfamilienhaus zum Kauf
Kontaktdaten
-
FirmaMaklerhaus 38 GmbH
-
AnschriftLange Strasse 52
38448 Wolfsburg -
E-Mail
-
Telefon
Objektdaten
-
Objekt-ID2025281
-
ObjekttypenEinfamilienhaus, Haus
-
Adresse38489 Jübar
Sachsen-Anhalt -
Etage1
-
Etagen im Haus1
-
Wohnfläche ca.307 m²
-
Balkon-/Terrassenfläche ca.200 m²
-
Grundstück ca.3.945 m²
-
Zimmer6
-
Schlafzimmer5
-
Badezimmer2
-
Balkone1
-
KücheEinbauküche
-
Baujahr2002
-
Letzte Modernisierung2025
-
Zustandmodernisiert
-
Ausstattunggehoben
-
Garagenstellplätze10 Stellplätze
-
Käuferprovision2,58 % Käuferprovision inklusive Umsatzsteuer.
Die Käufer-Provision beträgt 2,58 % vom Kaufpreis inkl. MwSt. Die Käufer-Provision ist verdient und fällig mit notarieller Beurkundung. Die Maklerhaus 38 GmbH hat einen provisionspflichtigen Maklervertrag in gleicher Höhe mit dem Verkäufer abgeschlossen. -
Kaufpreis748.000 EUR
Ausstattung / Merkmale
- ✓ Abstellraum
- ✓ Außenstellplatz
- ✓ Badewanne
- ✓ Balkon
- ✓ Dusche
- ✓ Einbauküche
- ✓ Garage
- ✓ Garten/Gartennutzung
- ✓ Gäste-WC
- ✓ Kamin
- ✓ Sauna
- ✓ Swimmingpool
- ✓ Tageslichtbad
Energieausweis
-
EnergieausweistypVerbrauchsausweis
-
Ausstellungsdatum12.09.2025
-
Gültig bis11.09.2035
-
GebäudeartWohngebäude
-
Baujahr lt. Energieausweis2002
-
PrimärenergieträgerHolz/Hackschnitzel
-
Endenergieverbrauch101,01 kWh/(m²·a)
-
Warmwasser enthaltenja
-
EnergieeffizienzklasseD
Objektbeschreibung
Beschreibung
Willkommen in einem Zuhause, das mehr ist als ein Haus – ein Refugium, das Raum für Leben, Träume und besondere Momente schenkt. Auf rund 307 m² Wohnfläche und einem parkähnlichen Grundstück von ca. 3.945 m² vereint dieses Anwesen Eleganz, Großzügigkeit und höchsten Wohnkomfort.
Schon beim Betreten des Erdgeschosses eröffnet sich eine Atmosphäre von Offenheit und Leichtigkeit: Der weitläufige Wohn- und Essbereich mit moderner Kochinsel bildet das Herzstück des Hauses – ein Ort, an dem Familie und Freunde zusammenkommen, um das Leben zu genießen. Großzügige Fensterfronten schenken dem Raum Helligkeit und verbinden Innen- und Außenbereich auf harmonische Weise. Zwei behagliche Schlaf- Gästezimmer mit weichem Teppichboden sowie ein luxuriöses Badezimmer mit freistehender Badewanne laden zum Entspannen und Verweilen ein.
Ein Hauswirtschaftsraum sorgt für Ordnung im Alltag, während der direkte Zugang zur Garage für besonderen Komfort steht. Diese bietet Platz für zwei Fahrzeuge, verfügt über ein elektrisches Tor und wird durch eine angrenzende Werkstatt und den Heizungsraum ergänzt. Für Gäste und größere Familienfeste hält das Anwesen zusätzlich Stellflächen für sechs bis acht weitere Fahrzeuge bereit.
Vom Erdgeschoss aus führt der Weg auf die beeindruckende, rund 200 m² große und teilweise überdachte Terrasse – ein perfekter Platz für Sommerabende mit Blick ins Grüne. Und wer den Alltag hinter sich lassen möchte, findet im ca. 108 m² großem Wellnessbereich mit Schwimmbad und Sauna seine persönliche Oase.
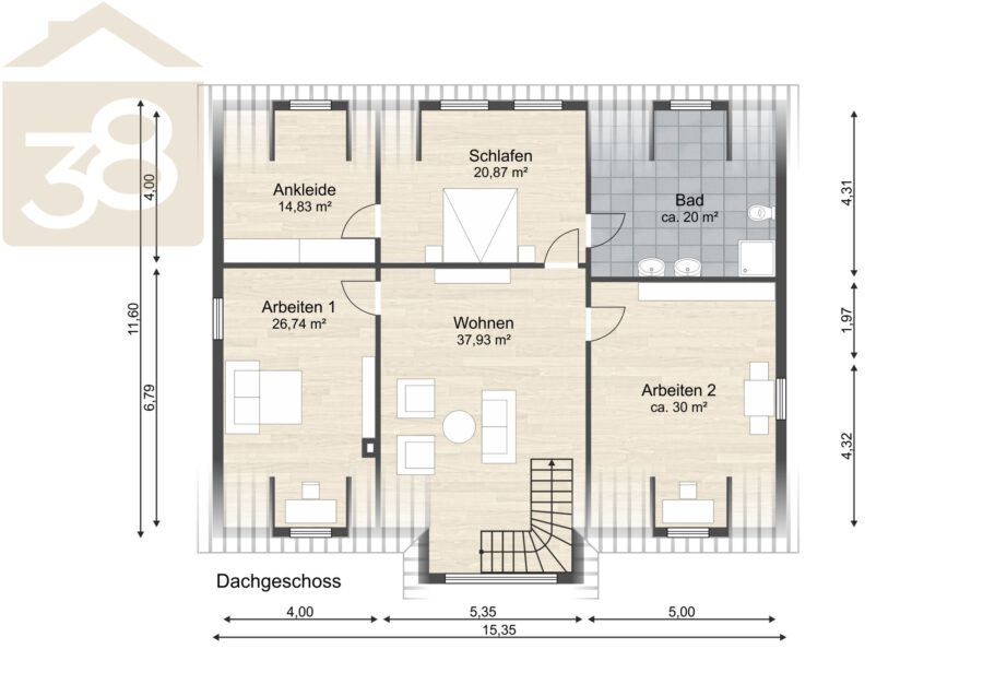
Das Obergeschoss begeistert mit einem Wohnzimmer, in dem ein stilvoller Kaminofen und edle Vollholzdielen aus brasilianischer Kirsche eine warme, elegante Atmosphäre schaffen. Zwei weitere Schlafzimmer bieten Raum für Individualität, während das Master-Schlafzimmer mit eigenem Badezimmer und großzügigem Ankleidezimmer höchste Ansprüche erfüllt – ein Rückzugsort der besonderen Art.
Der Dachboden bietet zusätzlichen Stauraum, während der Garten mit seiner Weitläufigkeit beeindruckt. Hier befindet sich auch ein ca. 100 m² großer Pferdestall mit drei Boxen und einer separaten Sattelkammer, der aktuell als Werkstatt genutzt wird, aber vielfältige Optionen eröffnet – sei es für Tierhaltung, kreative Projekte oder als Ergänzung zum exklusiven Wohnkonzept.
Dieses Anwesen vereint Eleganz und Funktionalität auf einzigartige Weise. Es ist ein Ort, der nicht nur zum Wohnen einlädt, sondern zum Leben, Genießen und Träumen – ein Haus für Menschen, die das Besondere suchen und Wert auf Qualität, Raum und Individualität legen.
Ausstattung
- 3945 m² Eigentumsgrundstück
- 307 m² Wohnfläche
- 216 m² Nutzfläche
- 100 m² Pferdestall
- Baujahr 2002
- 5 Schlafzimmer
- Doppelgarage
- Kamin
- Kaminofen
- Schwimmbad ca. 10 m x 5 m
- Sauna
- ca. 200 m² Terrasse
- Werkstatt
- Schlafzimmer mit Masterbad und Ankleidezimmer
- ruhige Lage
Sonstiges
Gerne laden wir Sie zu einer Besichtigung ein, um Ihnen vielleicht Ihr neues Zuhause bekannt zu machen.
Bei Interesse und zur Vereinbarung von Besichtigungsterminen setzen Sie sich bitte mit uns über das Kontaktformular in Verbindung. Bitte geben Sie hierbei Ihre vollständige Kontaktadresse an. Unvollständige Anfragen werden nicht bearbeitet.
Unser Angebot ist nur für den Empfänger bestimmt. Da die in diesem Exposé enthaltenen Angaben auf Informationen des Eigentümers beruhen, können wir für die Richtigkeit trotz aller Sorgfalt keine Gewähr übernehmen. Hierfür bitten wir höflich um Ihr Verständnis.
Die Datenverarbeitung erfolgt auf Grundlage von Art. 6 Abs. 1 lit. b) DSGVO. Sie müssen dabei diejenigen personenbezogenen Daten angeben, die für die Bearbeitung Ihres jeweiligen Anliegens bzw. die Vorbereitung oder Durchführung der Geschäftsbeziehung mit Ihnen erforderlich sind. Ohne diese Daten werden wir nicht in der Lage sein, Ihre Anfrage zu bearbeiten bzw. den Vertrag mit Ihnen zu erfüllen. Ich stimme daher zu, das OM Immobilienmanagement meine personenbezogenen Daten im Einzelfall z.B. bei Kauf- oder Mietvertragsabschlüssen abspeichert und an Dritte (Eigentümer/Notar/Behörden) übermitteln darf.
Lage
Entdecken Sie die charmante Gemeinde Jübar OT Wendischbrome, eingebettet im Altmarkkreis Salzwedel. Diese idyllische Lage bietet eine perfekte Balance zwischen ländlicher Ruhe und urbaner Nähe.
Wendischbrome liegt verkehrsgünstig nur ca. 20 Kilometer von der A39 entfernt, die eine schnelle Anbindung an die größeren Städte wie Wolfsburg und Braunschweig ermöglicht. Die Umgebung ist geprägt von weitläufigen Feldern, grünen Wiesen und malerischen Wäldern, die zu Spaziergängen und Outdoor-Aktivitäten einladen.
Im ca. 2 Kilometer entfernten Brome finden Sie alles, was Sie für den täglichen Bedarf benötigen: Supermärkte, Schulen, Kindergärten, Baumarkt, Tankstelle und medizinische Einrichtungen wie drei Allgemeinmediziener und zwei Zahnärtzte. Die Gemeinde zeichnet sich durch ihre freundliche und familiäre Atmosphäre aus, die besonders für junge Familien und Naturliebhaber attraktiv ist.
Kulturell Interessierte werden die historischen Sehenswürdigkeiten und Veranstaltungen in der nahegelegenen Hansestadt Salzwedel zu schätzen wissen. Hier können Sie die gut erhaltene Altstadt mit ihren Fachwerkhäusern und die beeindruckende St. Katharinenkirche erkunden.
Wendischbrome bietet Ihnen somit eine hervorragende Lebensqualität in einer malerischen Umgebung, die sowohl Entspannung als auch Komfort verspricht.
Die dargestellte Position der Immobilie ist nur eine ungefähre Angabe.


























































