Sanierungsbedürftiges Mehrfamilienhaus mit 5 Wohneinheiten! Mein Haus = Mein Partner!
38835 Osterwieck, Mehrfamilienhaus zum Kauf
Kontaktdaten
-
FirmaMaklerhaus 38 GmbH
-
AnschriftLange Strasse 52
38448 Wolfsburg -
E-Mail
-
Telefon
Objektdaten
-
Objekt-ID2025239
-
ObjekttypenHaus, Mehrfamilienhaus
-
Adresse38835 Osterwieck
Sachsen-Anhalt -
Wohnfläche ca.305 m²
-
Grundstück ca.1.800 m²
-
Zimmer8
-
Schlafzimmer4
-
Badezimmer5
-
Baujahr1900
-
Zustandsanierungsbedürftig
-
Kaufpreis149.000 EUR
Ausstattung / Merkmale
- ✓ Abstellraum
- ✓ Außenstellplatz
- ✓ Denkmalgeschützt
- ✓ Garten/Gartennutzung
- ✓ Keller
Energieausweis
-
Energieausweiswird bei Besichtigung vorgelegt
Objektbeschreibung
Beschreibung
In der historischen Stadt Osterwieck steht ein charmantes Mehrfamilienhaus aus dem Baujahr 1900, das mit einer großzügigen Wohnfläche von 305 m² auf einem weitläufigen Grundstück von 1.800 m² aufwartet. Diese Immobilie, die als Kulturdenkmal unter Schutz steht, bietet sich als sanierungsbedürftiges Objekt an, dessen innerer Charme durch eine umfassende Renovierung in ein wahres Wohnparadies verwandelt werden kann.
Zu den zu erhaltenden historischen Besonderheiten zählen der markante Schwebe-Giebel, der dem Haus eine besondere architektonische Note verleiht, sowie die originalen historischen Innentüren, die dem Gebäude seinen einzigartigen Flair verleihen. Ein weiteres Highlight ist das beeindruckende historische Treppenhaus, dessen Charme die Eleganz vergangener Zeiten widerspiegelt. Ein energetischer Sanierungsfahrplan sowie Förderanträge sind bereits bewilligt und die Immobilie ist vollständig entkernt, was den Weg zu Ihrer Traumimmobilie erleichtert.
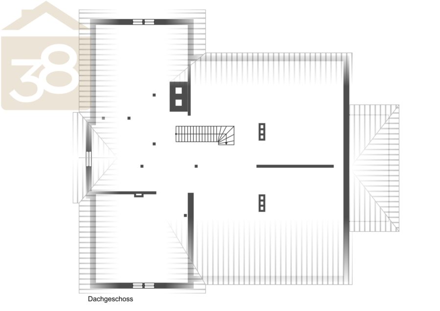
Das Haus ist vollständig unterkellert und besteht derzeit aus fünf potenziellen Wohneinheiten, was eine attraktive Gelegenheit für Investoren oder Eigennutzer darstellt. Im Erdgeschoss befinden sich zwei Zweizimmerwohnungen mit Wohnflächen von 82 m² und 72 m², die idealen Raum für Familien oder Paare bieten. Im Obergeschoss ergänzen eine kleine Einzimmerwohnung mit 34 m² und zwei Zweizimmerwohnungen mit 66 m² und 53 m² das Angebot und schaffen vielseitige Nutzungsmöglichkeiten.
Die Kombination aus historischem Flair, großzügigem Platzangebot und vielseitigen Nutzungsmöglichkeiten macht dieses sanierungsbedürftige Mehrfamilienhaus zu einer besonderen Investitionschance in einer wachsenden Gemeinde. Nutzen Sie das Potenzial, um dieses Gebäude nach Ihren Vorstellungen und Bedürfnissen zu gestalten und in ein modernes Wohnkonzept zu verwandeln.
Lassen Sie sich diese Gelegenheit nicht entgehen und vereinbaren Sie noch heute einen Besichtigungstermin! Wir freuen uns auf Ihre Anfrage.
Ausstattung
- 305 m² Wohnfläche
- 5 Wohneinheiten
- 1.800 m² Grundstück
- sanierungsbedürftig
Sonstiges
Gerne laden wir Sie zu einer Besichtigung ein, um Ihnen vielleicht Ihr neues Zuhause bekannt zu machen.
Bei Interesse und zur Vereinbarung von Besichtigungsterminen setzen Sie sich bitte mit uns über das Kontaktformular in Verbindung. Bitte geben Sie hierbei Ihre vollständige Kontaktadresse an. Unvollständige Anfragen werden nicht bearbeitet.
Unser Angebot ist nur für den Empfänger bestimmt. Da die in diesem Exposé enthaltenen Angaben auf Informationen des Eigentümers beruhen, können wir für die Richtigkeit trotz aller Sorgfalt keine Gewähr übernehmen. Hierfür bitten wir höflich um Ihr Verständnis.
Die Datenverarbeitung erfolgt auf Grundlage von Art. 6 Abs. 1 lit. b) DSGVO. Sie müssen dabei diejenigen personenbezogenen Daten angeben, die für die Bearbeitung Ihres jeweiligen Anliegens bzw. die Vorbereitung oder Durchführung der Geschäftsbeziehung mit Ihnen erforderlich sind. Ohne diese Daten werden wir nicht in der Lage sein, Ihre Anfrage zu bearbeiten bzw. den Vertrag mit Ihnen zu erfüllen. Ich stimme daher zu, das OM Immobilienmanagement meine personenbezogenen Daten im Einzelfall z.B. bei Kauf- oder Mietvertragsabschlüssen abspeichert und an Dritte (Eigentümer/Notar/Behörden) übermitteln darf.
Lage
Mit Recht wird Osterwieck auf Grund der vielen Fachwerkhäuser als „Perle von Sachsen-Anhalt“ bezeichnet. Angrenzend an den Harz lässt es sich hier beschaulich leben. In der Einheitsgemeinde Stadt Osterwieck finden Familien vieles für ihren Bedarf: Kindergärten, Schulen, Ärzte, zahlreiche Möglichkeiten zur Pflege und Betreuung, ein reichhaltiges Freizeitangebot, Dienstleister und Handwerker aus allen Bereichen und natürlich auch ein reges Vereinsleben. (Quelle: https://www.stadt-osterwieck.de)
Osterwieck liegt 50 km südlich von Braunschweig und ist über die A36 schnell erreicht.
Die dargestellte Position der Immobilie ist nur eine ungefähre Angabe.


























