Einfamilienhaus mit Einliegerwohnung und großem Entwicklungspotenzial! Mein Haus = Mein Partner!
38462 Grafhorst, Einfamilienhaus zum Kauf
Kontaktdaten
-
FirmaMaklerhaus 38 GmbH
-
AnschriftLange Strasse 52
38448 Wolfsburg -
E-Mail
-
Telefon
Objektdaten
-
Objekt-ID2026434
-
ObjekttypenEinfamilienhaus, Haus
-
Adresse38462 Grafhorst
Niedersachsen -
EtageEG
-
Etagen im Haus1
-
Wohnfläche ca.127 m²
-
Balkon-/Terrassenfläche ca.7 m²
-
Grundstück ca.973 m²
-
Zimmer5
-
Schlafzimmer3
-
Badezimmer1
-
Balkone1
-
Wesentlicher EnergieträgerGas
-
Baujahr1963
-
Letzte Modernisierung2025
-
Zustandgepflegt
-
AusstattungStandard
-
BodenbelagFliesen, Laminat
-
Außenstellplätze2
-
Käuferprovision3,57 % Käuferprovision inklusive Umsatzsteuer.
Die Käufer-Provision beträgt 3,57 % vom Kaufpreis inkl. MwSt. Die Käufer-Provision ist verdient und fällig mit notarieller Beurkundung. -
Kaufpreis245.000 EUR
Ausstattung / Merkmale
- ✓ Abstellraum
- ✓ Außenstellplatz
- ✓ Badewanne
- ✓ Balkon
- ✓ Dusche
- ✓ Fliesenboden
- ✓ Garten/Gartennutzung
- ✓ Keller
- ✓ Laminatboden
- ✓ Tageslichtbad
Energieausweis
-
EnergieausweistypBedarfsausweis
-
Ausstellungsdatum20.01.2026
-
Gültig bis19.01.2036
-
GebäudeartWohngebäude
-
Baujahr lt. Energieausweis2021
-
PrimärenergieträgerGas
-
Endenergiebedarf105,27 kWh/(m²·a)
-
EnergieeffizienzklasseD
Objektbeschreibung
Beschreibung
Zum Verkauf steht ein sehr gepflegtes und umfassend modernisiertes Einfamilienhaus mit Anbau (Einliegerwohnung). Die Immobilie ist seit 2021 zuverlässig vermietet und eignet sich insbesondere als attraktive Kapitalanlage. Darüber hinaus bietet das Eigentumsgrundstück mit 973 m² umfangreiches Ausbau- und Neubaupotenzial.
Das Haupthaus verfügt über eine Wohnfläche von ca. 127 m², verteilt auf 5 Zimmer. Ergänzt wird das Objekt durch einen Anbau mit ca. 40 m², der für die Nutzung als 1- bis 2-Zimmer-Wohnung vorgesehen ist.
Im Erdgeschoss des Haupthauses empfängt ein zentraler Flur die Bewohner und Besucher. Links vom Flur liegt das Badezimmer, das mit Badewanne und einem Fenster ausgestattet ist und somit Tageslicht und gute Belüftung bietet. Die Küche verfügt über eine vorhandene Einbauküche und bietet ausreichend Platz für den täglichen Bedarf. Von hier aus ist auch die Terrasse mit angrenzendem Garten zugänglich, die zu entspannten Stunden im Freien einlädt. Das Wohnzimmer bildet das Herzstück des Hauses und bietet einen direkten Zugang zu einem Schlafzimmer, wodurch sich dieser Bereich auch gut als Elternbereich nutzen lässt. Ergänzend steht im Erdgeschoss ein praktischer Abstellraum zur Verfügung.
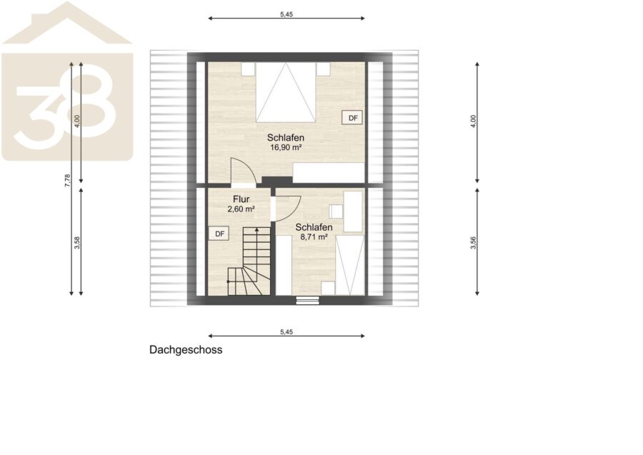
Das Dachgeschoss beherbergt zwei weitere Zimmer, die flexibel als Kinderzimmer, Gästezimmer oder Arbeitszimmer genutzt werden können und somit individuelle Wohnkonzepte ermöglichen. Beheizt wird das Haupthaus über eine Gasheizung aus dem Jahr 2021.
Für den Anbau, mit ca. 40 m², liegt bereits eine genehmigte Bauanfrage zur Nutzung zu Wohnzwecken vor. Die Fläche eignet sich zur Realisierung einer 1- bis 2-Zimmer-Wohnung. Mit dem Innenausbau wurde noch nicht begonnen, sodass der zukünftige Eigentümer die weitere Ausführung nach eigenen Vorstellungen gestalten kann.
Der Anbau wird ebenfalls über eine Gasheizung aus dem Jahr 2024 beheizt, mit eigener Gastherme sowie seperatem Stromkasten.
Zwei Außenstellplätze stehen auf dem Grundstück zur Verfügung und runden das Angebot ab.
Das Einfamilienhaus wurde in den vergangenen Jahren laufend instand gehalten und umfassend saniert.
Ein Renovierungsstau besteht nicht. Wärmedämmung des Haupthauses nach KfW-Standard 2024. Das Dach des Anbaus wurde 2023 erneuert, sowie die Elektrik inkl. Zählerschrank 2021 und die gesamten Abwasserleitungen außen wurden 2021.
Die Immobilie ist zum 01.06.2026 bezugsfrei.
Das Grundstück bietet zusätzlich attraktive Neubauoptionen. Ein Abriss des Bestandsgebäudes sowie die Errichtung von bis zu 6 Wohneinheiten ist grundsätzlich möglich. Architektenplanungen sowie Zeichnungen liegen bereits bei dem Eigentümer vor.
Ausstattung
- Einfamilienhaus in Grafhorst mit Einliegerwohnung
- Haupthaus +
- 127 m² Wohnfläche
- 973 m² Eigentumsgrundstück
- 5 Zimmer im Haupthaus
- vollwertiges Badezimmer
- Einbauküche
- Abstellraum
- Gasheizung Baujahr 2021
- Terrasse
- Garten
- Einliegerwohnung +
- ca. 40 m² Wohnfläche
- 1–2 Zimmer
- Gasheizung Baujahr 2024
- Zwei Außenstellplätze
Sonstiges
Gerne laden wir Sie zu einer Besichtigung ein, um Ihnen vielleicht Ihr neues Zuhause bekannt zu machen.
Bei Interesse und zur Vereinbarung von Besichtigungsterminen setzen Sie sich bitte mit uns über das Kontaktformular in Verbindung. Bitte geben Sie hierbei Ihre vollständige Kontaktadresse an. Unvollständige Anfragen werden nicht bearbeitet.
Unser Angebot ist nur für den Empfänger bestimmt. Da die in diesem Exposé enthaltenen Angaben auf Informationen des Eigentümers beruhen, können wir für die Richtigkeit trotz aller Sorgfalt keine Gewähr übernehmen. Hierfür bitten wir höflich um Ihr Verständnis.
Die Datenverarbeitung erfolgt auf Grundlage von Art. 6 Abs. 1 lit. b) DSGVO. Sie müssen dabei diejenigen personenbezogenen Daten angeben, die für die Bearbeitung Ihres jeweiligen Anliegens bzw. die Vorbereitung oder Durchführung der Geschäftsbeziehung mit Ihnen erforderlich sind. Ohne diese Daten werden wir nicht in der Lage sein, Ihre Anfrage zu bearbeiten bzw. den Vertrag mit Ihnen zu erfüllen. Ich stimme daher zu, das Maklerhaus 38 GmbH meine personenbezogenen Daten im Einzelfall z.B. bei Kauf- oder Mietvertragsabschlüssen abspeichert und an Dritte (Eigentümer/Notar/Behörden) übermitteln darf.
Lage
Die Gemeinde Grafhorst liegt im Landkreis Helmstedt im Bundesland Niedersachsen und gehört zur Samtgemeinde Velpke. Sie ist ein ländlich geprägter, kleiner Ort mit rund 1.100 Einwohnern und zeichnet sich durch eine ruhige, naturnahe Lage aus. Grafhorst erstreckt sich zwischen den Naturparks Elm-Lappwald und Drömling direkt an der Aller und bietet ein attraktives Wohnumfeld im Grünen.
Die Lage des Dorfes profitiert von der Nähe zur größeren Stadt Wolfsburg – diese ist in kurzer Zeit mit dem Auto erreichbar, was Pendlern und Familien eine gute Anbindung an Arbeitsplätze, Einkaufs- und Freizeitangebote ermöglicht. Gleichzeitig besticht Grafhorst durch eine hohe Wohn- und Lebensqualität in ruhiger Dorflage mit direktem Zugang zur Natur, landschaftlich attraktiven Wegen für Spaziergänge, Rad- oder Wandertouren sowie vielfältigen Freizeit- und Vereinsaktivitäten vor Ort.
Insgesamt vereint Grafhorst die Vorzüge eines naturnahen, dörflichen Umfelds mit guter infrastruktureller Erreichbarkeit der umliegenden Städte – ein Standort, der sowohl Familien als auch berufstätigen Bewohnern eine ausgewogene Lebensqualität bietet.
Die dargestellte Position der Immobilie ist nur eine ungefähre Angabe.


























