Renditepaket in Weyhausen: 3 Wohneinheiten vollvermietet! Mein Haus = Mein Partner!
38554 Weyhausen, Mehrfamilienhaus zum Kauf
Kontaktdaten
-
FirmaMaklerhaus 38 GmbH
-
AnschriftLange Strasse 52
38448 Wolfsburg -
E-Mail
-
Telefon
-
Website
Objektdaten
-
Objekt-ID2026005
-
ObjekttypenHaus, Mehrfamilienhaus
-
Adresse38554 Weyhausen
Niedersachsen -
EtageEG
-
Etagen im Haus1
-
Wohnfläche ca.210 m²
-
Balkon-/Terrassenfläche ca.14 m²
-
Grundstück ca.1.157 m²
-
Zimmer15
-
Schlafzimmer12
-
Badezimmer9
-
Balkone1
-
Wesentlicher EnergieträgerGas
-
Baujahr2000
-
Zustandgepflegt
-
AusstattungStandard
-
BodenbelagFliesen, Laminat
-
Statusvermietet
-
Garagenstellplätze10 Stellplätze
-
Käuferprovision3,57 % inklusive Umsatzsteuer. Die Provision ist mit der Beurkundung verdient & vom Käufer zu zahlen.
3,57% inklusive Umsatzsteuer. Die Provision ist mit der Beurkundung verdient & vom Käufer zu zahlen. -
Kaltmiete3.950,00 EUR
-
Kaufpreis795.000 EUR
Ausstattung / Merkmale
- ✓ Abstellraum
- ✓ Außenstellplatz
- ✓ Badewanne
- ✓ Balkon
- ✓ Dusche
- ✓ Fliesenboden
- ✓ Garage
- ✓ Gäste-WC
- ✓ Laminatboden
- ✓ Tageslichtbad
Energieausweis
-
Energieausweiswird bei Besichtigung vorgelegt
Objektbeschreibung
Beschreibung
In zentraler Lage von Weyhausen erwartet Sie als Kapitalanleger ein attraktives und nachhaltig vermietetes Investitionsobjekt. Zum Verkauf steht ein Paket bestehend aus zwei Maisonette-Wohnungen sowie einer Gewerbeeinheit im Erdgeschoss. Die Immobilie befindet sich auf einem 1.157 m² großen Eigentumsgrundstück und wird durch insgesamt sieben PKW-Außenstellplätze sowie drei Garagen ergänzt.
Das Wohn- und Geschäftshaus ist vollvermietet und erzielt eine Jahresnettokaltmiete in Höhe von 47.400 €, was einer Nettoanfangsrendite von ca. 6 % vor Steuern entspricht. Mietrückstände bestehen nicht.
Das Wohn- & Geschäftshaus beinhaltet folgende Wohneinheiten:
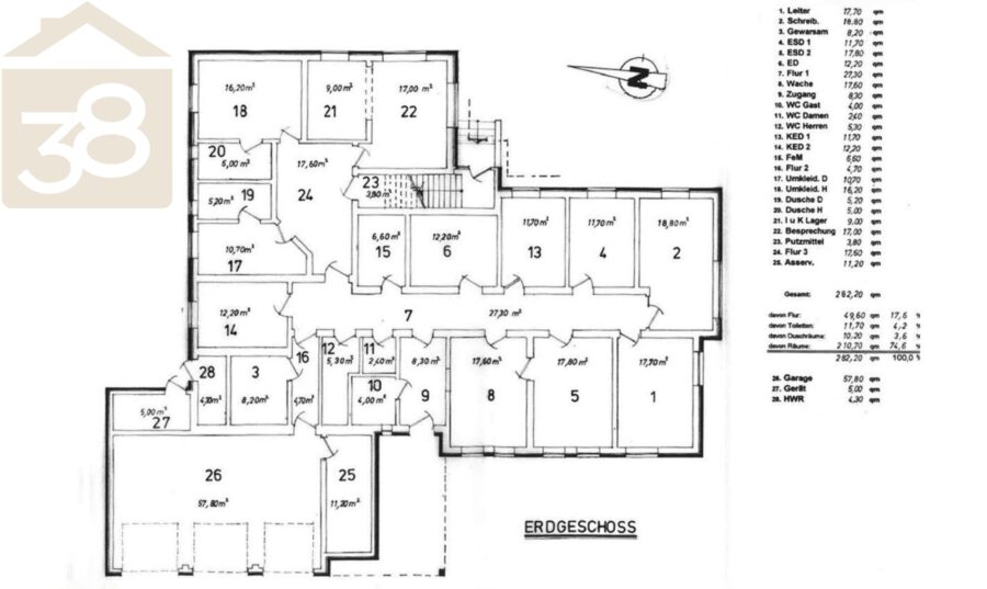
Im Erdgeschoss befindet sich eine ca. 267 m² große Gewerbeeinheit, die seit 1998 zuverlässig an das Land Niedersachsen als Polizeidienststelle vermietet ist. Die monatliche Nettokaltmiete beträgt hier 2.400,00 €. Aus Datenschutzgründen können leider keine Bilder der Dienststelle zur Verfügung gestellt werden.
Im Ober-/ Dachgeschoss:
Im Ober- und Dachgeschoss liegen zwei 3-Zimmer-Maisonette-Wohnungen mit Wohnflächen von ca. 100 m² und ca. 110 m². Die Wohnungen verfügen jeweils über eine klassische Raumaufteilung mit Wohnbereich, Schlafzimmer, Kinderzimmer, Flur, Küche und Bad und sind aktuell zu monatlichen Nettokaltmieten von 750,00 € beziehungsweise 800,00 € vermietet.
Das im Jahr 2000 errichtete Wohn- und Geschäftshaus präsentiert sich dank kontinuierlicher Pflege in einem sehr guten Gesamtzustand. Ein Instandhaltungs- oder Sanierungsstau besteht nicht. Die Ausstattung ist zeitlos und solide gehalten. Jede Wohneinheit wird über eine eigene Gastherme beheizt und verfügt über getrennte Gas-, Strom- und Wasserzähler.
Die Gartenfläche sowie eine Terrasse der Wohnanlage stehen den Mietern zur gemeinschaftlichen Nutzung zur Verfügung. Neben den vorhandenen Außenstellplätzen und Garagen ist zusätzlich eine vierte Wohneinheit im Gebäude vorhanden, welche jedoch nicht Bestandteil des Verkaufs ist.
Diese Immobilie überzeugt durch ihre zentrale Lage, die langfristige und sichere Vermietung – insbesondere an einen öffentlichen Mieter – sowie durch eine stabile Rendite und eignet sich ideal als nachhaltige Kapitalanlage.
Ausstattung
- 10 km von Wolfsburgs Stadtmitte entfernt
- perfekte Anbindung zur FE über die A39
- gute Rendite (ca. 6 % vor Steuer)
- 47.400-€ Nettomiete pro Jahr
- gepflegte fortlaufend sanierte Kapitalanlage
- kein Sanierungsstau
- keine Mietrückstände
- leichte Abrechnung da Gas und Strom über die Mieter direkt läuft
- 1.157 m² Eigentumsgrundstück
- 2 Maisonettewohnungen und 1 Wohneinheit welche vom öffentlichen Dienst genutzt wird
- 7 PKW-Stellplätze und 3 Garagen
- gemeinschaftliche Terrasse
Sonstiges
Gerne laden wir Sie zu einer Besichtigung ein, um Ihnen vielleicht Ihr neues Zuhause bekannt zu machen.
Bei Interesse und zur Vereinbarung von Besichtigungsterminen setzen Sie sich bitte mit uns über das Kontaktformular in Verbindung. Bitte geben Sie hierbei Ihre vollständige Kontaktadresse an. Unvollständige Anfragen werden nicht bearbeitet.
Unser Angebot ist nur für den Empfänger bestimmt. Da die in diesem Exposé enthaltenen Angaben auf Informationen des Eigentümers beruhen, können wir für die Richtigkeit trotz aller Sorgfalt keine Gewähr übernehmen. Hierfür bitten wir höflich um Ihr Verständnis.
Die Datenverarbeitung erfolgt auf Grundlage von Art. 6 Abs. 1 lit. b) DSGVO. Sie müssen dabei diejenigen personenbezogenen Daten angeben, die für die Bearbeitung Ihres jeweiligen Anliegens bzw. die Vorbereitung oder Durchführung der Geschäftsbeziehung mit Ihnen erforderlich sind. Ohne diese Daten werden wir nicht in der Lage sein, Ihre Anfrage zu bearbeiten bzw. den Vertrag mit Ihnen zu erfüllen. Ich stimme daher zu, das Maklerhaus 38 GmbH meine personenbezogenen Daten im Einzelfall z.B. bei Kauf- oder Mietvertragsabschlüssen abspeichert und an Dritte (Eigentümer/Notar/Behörden) übermitteln darf.
Lage
Weyhausen ist eine Gemeinde im Landkreis Gifhorn in Niedersachsen. Die Wohnung liegt im Ortskern von Weyhausen, jedoch ruhig.
Ein Einkaufscenter, Ärzte, öffentliche Verkehrsmittel sowie Kindergärten und Schulen sind in unmittelbarer Nähe.
Der Arbeitgeber Volkswagen sowie die nächste Autobahnauffahrt liegen nur wenige Kilometer entfernt
Die ungefähre Position der Immobilie auf Google Maps ansehen (Link auf externe Website)































