Einfamilienhaus mit Doppelgarage & 670 m² Eigentumsgrundstück in Tappenbeck! Mein Haus=Mein Partner
38479 Tappenbeck, Einfamilienhaus zum Kauf
Kontaktdaten
-
FirmaMaklerhaus 38 GmbH
-
AnschriftLange Strasse 52
38448 Wolfsburg -
E-Mail
-
Telefon
-
Website
Objektdaten
-
Objekt-ID2025330
-
ObjekttypenEinfamilienhaus, Haus
-
Adresse38479 Tappenbeck
Niedersachsen -
EtageEG
-
Etagen im Haus1
-
Wohnfläche ca.140 m²
-
Grundstück ca.670 m²
-
Zimmer6
-
Schlafzimmer2
-
Badezimmer2
-
Balkone1
-
KücheEinbauküche
-
Wesentlicher EnergieträgerÖl
-
Baujahr1957
-
Letzte Modernisierung2024
-
Zustandgepflegt
-
AusstattungStandard
-
BodenbelagFliesen, Laminat, Teppichboden
-
Garagenstellplätze4 Stellplätze
-
Käuferprovision2,58 % Käuferprovision inklusive Umsatzsteuer.
Die Käufer-Provision beträgt 2,58 % vom Kaufpreis inkl. MwSt. Die Käufer-Provision ist verdient und fällig mit notarieller Beurkundung. Die Maklerhaus 38 GmbH hat einen provisionspflichtigen Maklervertrag in gleicher Höhe mit dem Verkäufer abgeschlossen. -
Kaufpreis299.900 EUR
Ausstattung / Merkmale
- ✓ Abstellraum
- ✓ Außenstellplatz
- ✓ Balkon
- ✓ Dusche
- ✓ Einbauküche
- ✓ Fliesenboden
- ✓ Garage
- ✓ Garten/Gartennutzung
- ✓ Gäste-WC
- ✓ Keller
- ✓ Laminatboden
- ✓ Tageslichtbad
- ✓ Teppichboden
Energieausweis
-
EnergieausweistypVerbrauchsausweis
-
Ausstellungsdatum03.06.2025
-
Gültig bis02.06.2035
-
GebäudeartWohngebäude
-
Baujahr1957
-
PrimärenergieträgerÖl
-
Endenergieverbrauch101,33 kWh/(m²·a)
-
EnergieeffizienzklasseD
Objektbeschreibung
Beschreibung
Dieses charmante Einfamilienhaus in ruhiger Wohnlage von Tappenbeck bietet mit rund 140 m² Wohnfläche und einem großzügigen Eigentumsgrundstück von etwa 670 m² ein ideales Zuhause für Familien, Paare oder alle, die Wert auf Platz, Komfort und eine angenehme Wohnatmosphäre legen. Das im Jahr 1957 errichtete Haus überzeugt durch seine solide Bauweise, eine durchdachte Raumaufteilung und das Potenzial, individuelle Wohnträume zu verwirklichen.
In den vergangenen Jahren wurden zahlreiche Modernisierungen durchgeführt, sodass sich die Immobilie in einem gepflegten und technisch zeitgemäßen Zustand präsentiert. Im Jahr 2004 wurden sämtliche Wasser- und Heizungsrohre sowie die Heizkörper erneuert, ebenso die Fenster. 2011 erfolgte der Einbau einer modernen Ölzentralheizung mit Brennwerttechnik inklusive neuem Warmwasserspeicher und Solarthemieunterstützung. Im gleichen Jahr wurde die Fassade gedämmt, das Dach erhielt eine Zwischensparrendämmung, eine neue Eindeckung sowie neue Dachfenster – Maßnahmen, die langfristig für Energieeffizienz und Wohnkomfort sorgen.
Beim Betreten des Hauses empfängt Sie ein freundlicher Flur. Die Küche im Erdgeschoss verfügt über eine Einbauküche, die viel Stauraum und Arbeitsfläche bietet. Sie lädt zum gemeinsamen Kochen und Genießen ein. Das gemütliche Wohn- und Esszimmer sorgt für eine helle und freundliche Atmosphäre. Von hier aus gelangen Sie direkt auf die überdachte Terrasse, die einen schönen Blick in den gepflegten Garten eröffnet – ideal für entspannte Stunden im Freien oder gesellige Abende mit Familie und Freunden.
Im Erdgeschoss befinden sich außerdem ein Badezimmer mit Dusche und WC sowie ein weiteres Zimmer, das sich wahlweise als Kinder-, Gäste- oder Arbeitszimmer eignet. Eine praktische Waschküche bietet zusätzlichen Platz für Hauswirtschaft und Vorrat.
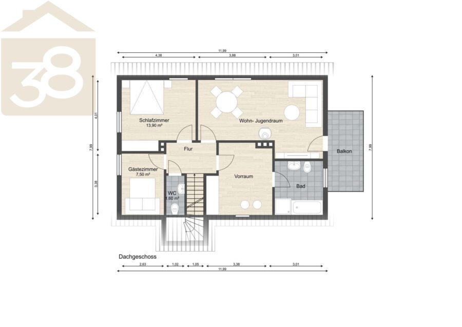
Das Obergeschoss erweitert das Raumangebot um mehrere Zimmer, die flexibel genutzt werden können. Hier stehen ein separates Gäste-WC, ein weiteres noch auszubauendes Badezimmer sowie ein wohnlich gestalteter Aufenthaltsbereich zur Verfügung. Drei zusätzliche Zimmer bieten sich ideal als Schlaf-, Kinder-, Gäste- oder Arbeitszimmer an – perfekt für Familien oder für alle, die gern großzügig wohnen und arbeiten.
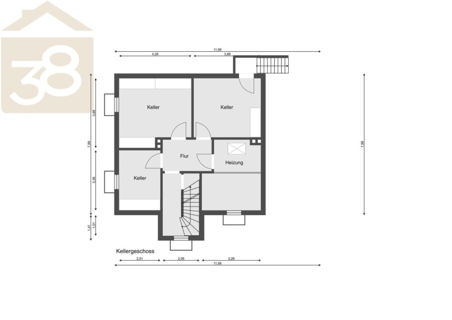
Im Kellergeschoss befinden sich neben dem Heizungs-Ölraum 3 weitere Räume, die vielfältige Nutzungsmöglichkeiten bieten. Ob als Lagerfläche, Werkstatt, Hobbyraum oder Vorratskeller – hier ist reichlich Platz vorhanden, um individuellen Bedürfnissen gerecht zu werden.
Der Außenbereich überzeugt durch seinen liebevoll angelegten Garten, der sowohl Sonnen- als auch Schattenplätze bereithält. Die überdachte Terrasse lädt zum Verweilen ein und bietet den idealen Rahmen für gemütliche Sommerabende oder ruhige Momente im Grünen. Das große Grundstück lässt zudem genügend Raum für Kinder zum Spielen oder für Gartenliebhaber, die ihre eigenen Ideen umsetzen möchten.
Abgerundet wird dieses attraktive Angebot durch eine Doppelgarage, die ausreichend Platz für zwei Fahrzeuge und zusätzlichen Stauraum bietet.
Das Haus liegt in einer ruhigen Wohngegend von Tappenbeck, einer beliebten Gemeinde mit guter Anbindung an Wolfsburg und Gifhorn. Einkaufsmöglichkeiten, Schulen, Kindergärten und Freizeiteinrichtungen befinden sich in der näheren Umgebung. Die Lage vereint somit ländliche Ruhe mit der Nähe zur Stadt – ideal für alle, die beides schätzen.
Dieses Einfamilienhaus bietet eine solide Grundlage für ein komfortables und familienfreundliches Wohnen. Mit seiner großzügigen Raumaufteilung, dem schönen Garten und der ruhigen Lage ist es der ideale Ort, um sich dauerhaft wohlzufühlen und eigene Wohnideen zu verwirklichen.
Ausstattung
- 140 m² Wohnfläche
- 670 m² Eigentumsgrundstück
- 6 Zimmer
- Einbauküche
- Gäste-WC
- zwei Badezimmer
- Doppelgarage mit zusätzlichem Stauraum
- Garten
- überdachte Terrasse
- Keller
Sonstiges
Gerne laden wir Sie zu einer Besichtigung ein, um Ihnen vielleicht Ihr neues Zuhause bekannt zu machen.
Bei Interesse und zur Vereinbarung von Besichtigungsterminen setzen Sie sich bitte mit uns über das Kontaktformular in Verbindung. Bitte geben Sie hierbei Ihre vollständige Kontaktadresse an. Unvollständige Anfragen werden nicht bearbeitet.
Unser Angebot ist nur für den Empfänger bestimmt. Da die in diesem Exposé enthaltenen Angaben auf Informationen des Eigentümers beruhen, können wir für die Richtigkeit trotz aller Sorgfalt keine Gewähr übernehmen. Hierfür bitten wir höflich um Ihr Verständnis.
Die Datenverarbeitung erfolgt auf Grundlage von Art. 6 Abs. 1 lit. b) DSGVO. Sie müssen dabei diejenigen personenbezogenen Daten angeben, die für die Bearbeitung Ihres jeweiligen Anliegens bzw. die Vorbereitung oder Durchführung der Geschäftsbeziehung mit Ihnen erforderlich sind. Ohne diese Daten werden wir nicht in der Lage sein, Ihre Anfrage zu bearbeiten bzw. den Vertrag mit Ihnen zu erfüllen. Ich stimme daher zu, das OM Immobilienmanagement meine personenbezogenen Daten im Einzelfall z.B. bei Kauf- oder Mietvertragsabschlüssen abspeichert und an Dritte (Eigentümer/Notar/Behörden) übermitteln darf.
Lage
Das Einfamilienhaus befindet sich in ruhiger und familienfreundlicher Lage von Tappenbeck, einer beliebten Gemeinde im Landkreis Gifhorn. Der Ort überzeugt durch seine naturnahe Umgebung und die unmittelbare Nähe zur Stadt Wolfsburg, die in nur etwa 10 Minuten erreichbar ist.
Tappenbeck bietet eine gute Infrastruktur mit Kindergarten, Grundschule und kleineren Einkaufsmöglichkeiten im Ort. Weitere Geschäfte, Ärzte und Freizeiteinrichtungen finden sich in den Nachbarorten und in Wolfsburg. Die Verkehrsanbindung ist hervorragend – über die B248 und die A39 sind Gifhorn und Braunschweig ebenfalls schnell erreichbar.
Die grüne Umgebung mit zahlreichen Rad- und Spazierwegen sorgt für hohen Freizeitwert und macht Tappenbeck zu einem idealen Wohnort für Familien und Ruhesuchende, die ländliche Idylle mit städtischer Nähe verbinden möchten.
Die ungefähre Position der Immobilie auf Google Maps ansehen (Link auf externe Website)




























